• VLEGI 501  A7

    38 ㎡ 플래그십 홈 버전

제품 매개변수

  • A7-02.jpg
  • A7-07.jpg
아이콘 (12).png

길이*너비*높이

11.5*3.3*3.2M

아이콘 (11).png

건축 면적

38㎡

아이콘 (9).png

수용 인원

2-4

아이콘 (5).png

정격 전력

12KW

아이콘 (2).png

총 순중량

8.5T

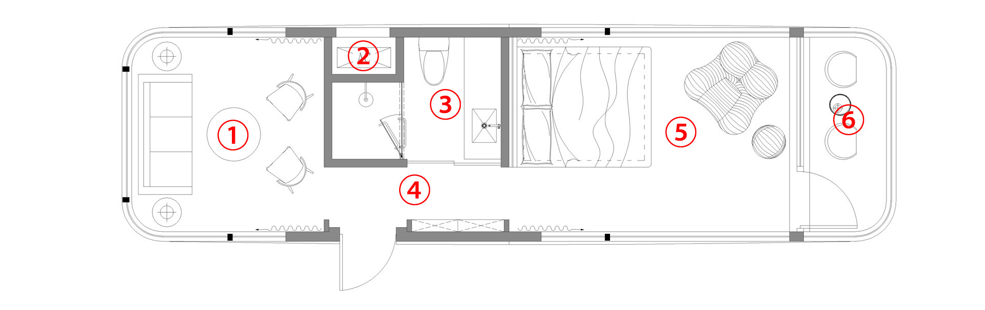
기능 소개

A7-1.jpg

1-거실/부엌,  2-장비실,  3-욕실,  4-복도,  5-침실,  6-야외 발코니

메시지
제출